1. Accueil
  2. Rangement
  3. Dressing & placard
  4. Création d'un dressing pour enfant avec bibliothèque ouverte à portes coulissantes et ralentisseurs coloris blanc frêne à Langon
Retour
Dressing & placard

Création d'un dressing pour enfant avec bibliothèque ouverte à portes coulissantes et ralentisseurs coloris blanc frêne à Langon

Vous en avez assez de vos placards dont les portes coulissent mal et qui ne correspondent pas à l'alignement des rangements intérieurs? Vous êtes au bon endroit ! Aquiréno, une entreprise girondine spécialisée dans l'ameublement sur mesure créé pour vous des rangements utiles, esthétiques et cohérents. 

 

Découvrez ici une composition pour un ado qui avait besoin de vrais rangements et d'une bibliothèque ouverte pour le stockage de ses livres et de ses cahiers de cours à Langon (33).

 

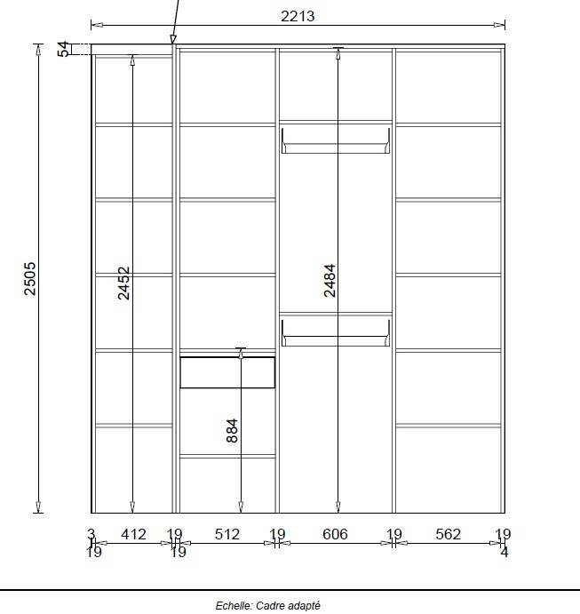
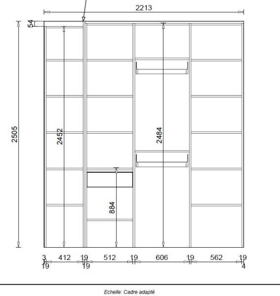
Des rangements optimum jusqu'au plafond comprenant :

  • une colonne entièrement dédiée aux étagères pour les vêtements pliés
  • une colonne entièrement dédiée aux penderies pour les vêtements sur cintres
  • une colonne mixant tiroir et étagères
  • une bibliothèque ouverte (sans portes)

Pour respecter le budget de nos clients, nous avons proposé une composition sans fond de placard (les murs étant propres) et sans socle (étagère de sol)

 

Résultat, une chambre qui revit et un ado qui a découvert sa chambre et dit à ses parents "Maman, je me sens bien dans ma maison maintenant !" Voilà tout le sens de notre travail : donner satisfaction à tous les membres de la famille et voir en fin de chantier des étoiles dans les yeux de nos clients ! Un grand merci pour leur confiance.


Alors si vous aussi vous souhaitez pouvoir ouvrir vos placards sans difficultés, profiter de portes coulissantes de qualité munies de ralentisseurs, profiter de colonnes de rangement organisées selon vos besoin et bien alignées avec les portes, il vous suffit de contacter Céline, notre conceptrice, qui saura vous conseiller et réaliser vos plans d'aménagement. Profitez chez Aquiréno d'une étude 3D gratuite et d'un devis gratuit. De nombreux coloris vous attendent au show room.

 

Nous écrire
Les champs indiqués par un astérisque (*) sont obligatoires
À découvrir
Dressing vert et gris sur mesure à Bègles

Avant / Après d'un dressing sur mesure à Bègles

Ici, à Bègles, découvrez une belle transformation d'un placard bricolé en vrai dressing avec potentiel de rangement du...
En savoir plus
Conception, fabrication, installation de 3 dressings avec portes coulissantes sous plafonds rampants colori blanc mat pur à Andernos

Conception, fabrication, installation de 3 dressings avec portes coulissantes sous plafonds rampants colori blanc mat pur à Andernos

Découvrez ici notre dernière création rangement réalisée en janvier 2024 à Andernos. Une pose complexe et méticuleuse ...
En savoir plus
Création de dressings sur mesure avec étagères d'angles portes battantes et portes coulissantes colori nude abricot et chene vanille à Podensac

Création de dressings sur mesure avec étagères d'angles portes battantes et portes coulissantes colori nude abricot et chene vanille à Podensac

Découvrez ici une belle réalisation de dressings dans deux chambres d'enfants. Notre client de Podensac nous a s...
En savoir plus
Fabrication française
Fabrication française
Étude et modélisation 3D
Étude et modélisation 3D
Accompagnement & garantie
Accompagnement & garantie
Recyclage & Eco responsable
Recyclage & Eco responsable
35 ans d'expérience en rénovation
35 ans d'expérience en rénovation
2 showrooms Landiras & Artigues
2 showrooms Landiras & Artigues
Nous écrire